Lähden:
 Geräumiges Einfamilienhaus mit Einliegerwohnung in zentraler Wohnlage! 					
					
              Objekt-Nr.: 7024#McilE          
				
Vorderansicht

Vorderansicht

Rückansicht

Terrasse

Garten

Flur ELW

Wohnzimmer ELW

Küche ELW

Bad ELW

Flur Haupthaus

Wohnzimmer Haupthaus EG

Esszimmer Haupthaus

Küche Haupthaus

Bad Haupthaus DG

Wohnzimmer Haupthaus DG

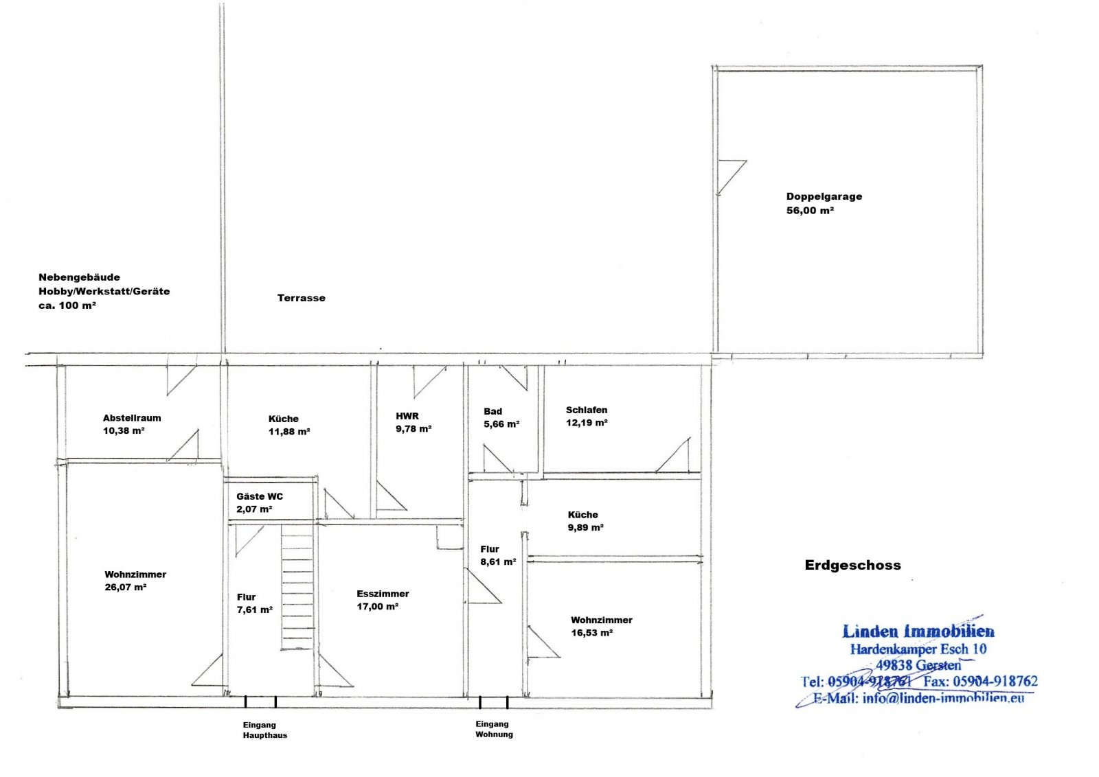
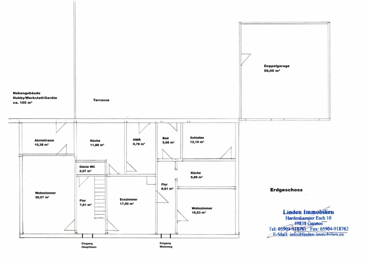
Erdgeschoss

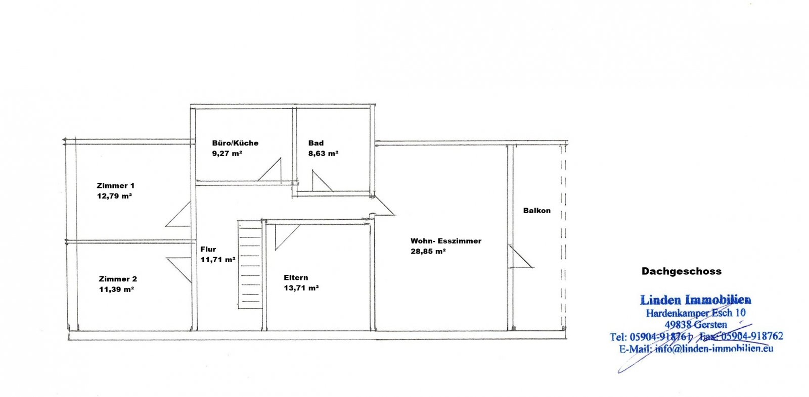
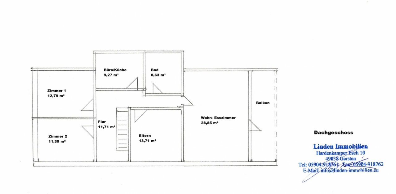
Dachgeschoss

Nebengebäude


















Preis:
 198.000 €
Wohnfläche ca.:
 230 m²
Grundstück ca.:
 760 m²
Zimmeranzahl:
 9
Dieses Einfamilienhaus mit Einliegerwohnung wurde ca. 1950 in massiver Bauweise erstellt. 
Das Haupthaus (ca. 180 m², renoviert bzw. saniert ab ca. 1981) teilt sich wie folgt auf:
Im Erdgeschoss befinden sich
- Flur
- Wohnzimmer mit Zugang zum Anbau
- Gäste WC
- Esszimmer
- Küche
- Hauswirtschaftsraum mit Zugang zur überdachten Terrasse
Im Dachgeschoss befinden sich
- Flur
- 3 Schlafzimmer
- Büro (Küchenanschlüsse vorhanden)
- Badezimmer
- Wohnzimmer mit Zugang zur Loggia
Der Gasanschluss befindet sich im Teilkeller (1 Raum).
Die Erdgeschoss-Einliegerwohnung (ca. 50 m², saniert 2024) teilt sich wie folgt auf:
- Flur
- Wohnzimmer
- Küche
- Schlafzimmer
- Badezimmer mit Zugang zur Terrasse
Zudem verfügt das Objekt über eine Doppelgarage (ca. 57 m²) und ein Anbau (ca. 109 m² sanierungsbedürftig).
Haustyp: Einfamilienhaus
Provisionspflichtig: ja
Provision: 3,57 % (inkl. MwSt.)
Küche: Einbauküche
Anzahl Badezimmer: 2
Terrasse: 1
Einliegerwohnung: ja
Gäste-WC: ja
Keller: voll unterkellert
Letzte Modernisierung/ Sanierung: 2024
Baujahr: 1950
Verfügbar ab: nach Vereinbarung
Heizung: Zentralheizung
Befeuerungsart: Gas
Energieausweistyp: Bedarfsausweis - gültig vom 24.04.2023 bis 23.04.2033
Energieeffizienz-Klasse: F
Baujahr laut Energieausweis: 1950
Wir weisen auf unsere Allgemeinen Geschäftsbedingungen hin. Durch weitere Inanspruchnahme unserer Leistungen erklären Sie die Kenntnis und Ihr Einverständnis.
Das könnte Ihnen auch gefallen
49774 Lähden
Emsland
Niedersachsen
 
							

 
           
          























