Haselünne:
Ehemalige Dorfschule als modernes Familienhaus – großzügig, gepflegt, mit Geschichte!
Objekt-Nr.: 7026#McilE

Vorderansicht

Vorderansicht

Vorderansicht

Rückansicht

Nebengebäude / Garten

Garten

Terrasse

Flur / Haupteingang

Küche

Küche

Wohnen

Wohnen

Duschbad

Duschbad

Zimmer

Wohn- Esszimmer

Flur / Duschbad

Zimmer DG

Duschbad DG

Duschbad DG

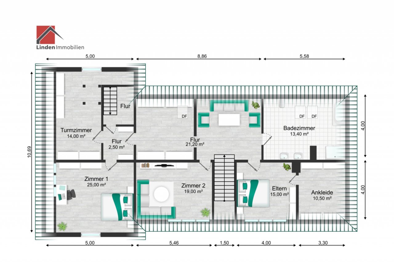
Grundriss Dachgeschoss

Grundriss Erdgeschoss

Nebengebäude























Preis:
329.000 €
Wohnfläche ca.:
275,70 m²
Grundstück ca.:
1.564 m²
Zimmeranzahl:
8
Dieses sehr gepflegte, großzügige Ein- bzw. Zweifamilienhaus wurde 1927 in massiver Bauweise errichtet und diente ursprünglich als Schulgebäude von Klosterholte. Ab 1980 erfolgte der Umbau zum Wohnhaus, es wurden umfangreiche Sanierungen und Modernisierungen durchgeführt.
Das Ergebnis: viel Platz und große Fensterflächen – kombiniert mit zeitgemäßer Wohnqualität und dem besonderen Flair eines historischen Hauses.…
Die Gesamtwohnfläche von 275,70 m² teilt sich wie folgt auf:
Im Erdgeschoss befinden sich
- Flur mit Treppe zum Dachgeschoss und Keller
- Küche
- Duschbad
- HWR
- Heizungsraum/Anschlüsse
- Wohnen mit Zugang zur überdachten Terrasse
- Büro
- Zimmer
- Zimmer
- Wohn-Esszimmer
- Flur mit Nebeneingang, Zugang zum Nebengebäude und Treppe zum Dachgeschoss.
- Duschbad
Im Dachgeschoss befinden sich
- Flur
- Badezimmer
- Eltern
- Ankleide
- Zimmer 2
- Flur
- Zimmer 1
- Turmzimmer (hier befindet sich die Glockenanlage)
Vom Flur gelangen Sie in das großzügige Nebengebäude mit einer Nutzfläche von ca. 120 m².
Hinter dem Nebengebäude befindet sich in Südausrichtung ein Pultdach mit einer Photovoltaikanlage (22 Kwp Leistung, Volleinspeisung, Bj. 2009). Diese kann auf Wunsch separat übernommen werden.
Die Fläche unter dem Pultdach (ca. 80 m²) wird als Holzlager genutzt und verfügt über eine separate Zufahrt.
Im pflegeleicht angelegten Garten befindet sich eine überdachte Terrasse.
Haustyp: Einfamilienhaus
Provisionspflichtig: ja
Provision: 3,57% (inkl. MwSt.)
Küche: Einbauküche
Anzahl Badezimmer: 3
Terrasse: 1
Kamin: ja
Keller: teil unterkellert
Letzte Modernisierung/ Sanierung: 2022
Baujahr: 1927
Verfügbar ab: nach Vereinbarung
Zustand: gepflegt
Heizung: Zentralheizung
Befeuerungsart: Gas
Energieausweistyp: Verbrauchsausweis - gültig vom 24.09.2025 bis 23.09.2035
Energieeffizienz-Klasse: A
Baujahr laut Energieausweis: 1927
Wir weisen auf unsere Allgemeinen Geschäftsbedingungen hin. Durch weitere Inanspruchnahme unserer Leistungen erklären Sie die Kenntnis und Ihr Einverständnis.
Das könnte Ihnen auch gefallen
49740 Haselünne
Emsland
Niedersachsen
