Lingen:
Gepflegt - Charmant - Stilvoll! Ideales Einfamilienhaus in Altenlingen!
Objekt-Nr.: 7029#McilE

Vorderansicht

Vorderansicht

Rückansicht

Garten

überdachte Terrasse

überachte Terrasse

Garten

Garten

Flur

Wohn- Esszimmer

Wohn- Esszimmer

Wohn- Esszimmer

Küche

Gäste WC

HWR

Flur

Badezimmer

Badezimmer

Zimmer

Zimmer

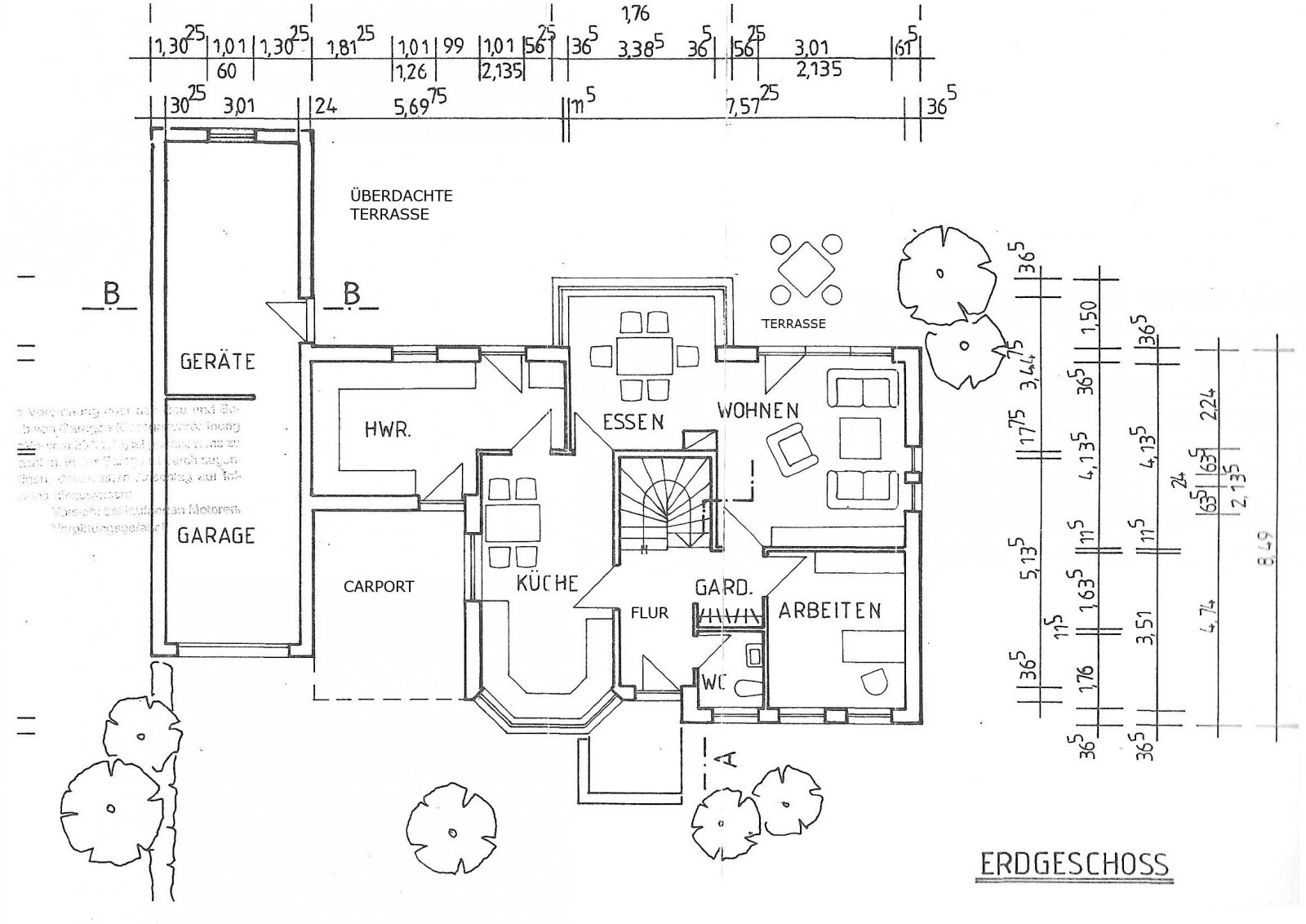
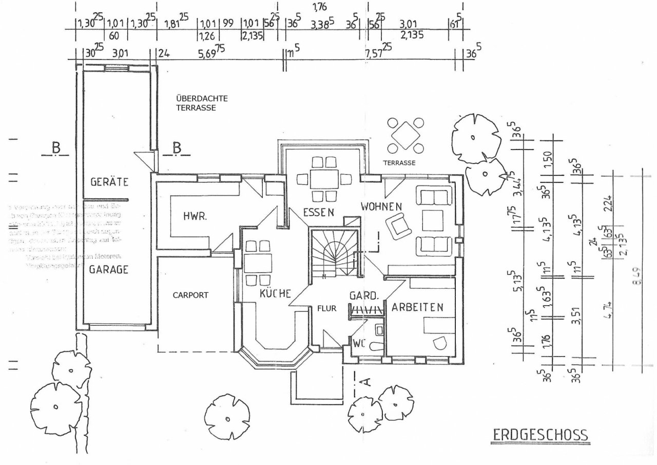
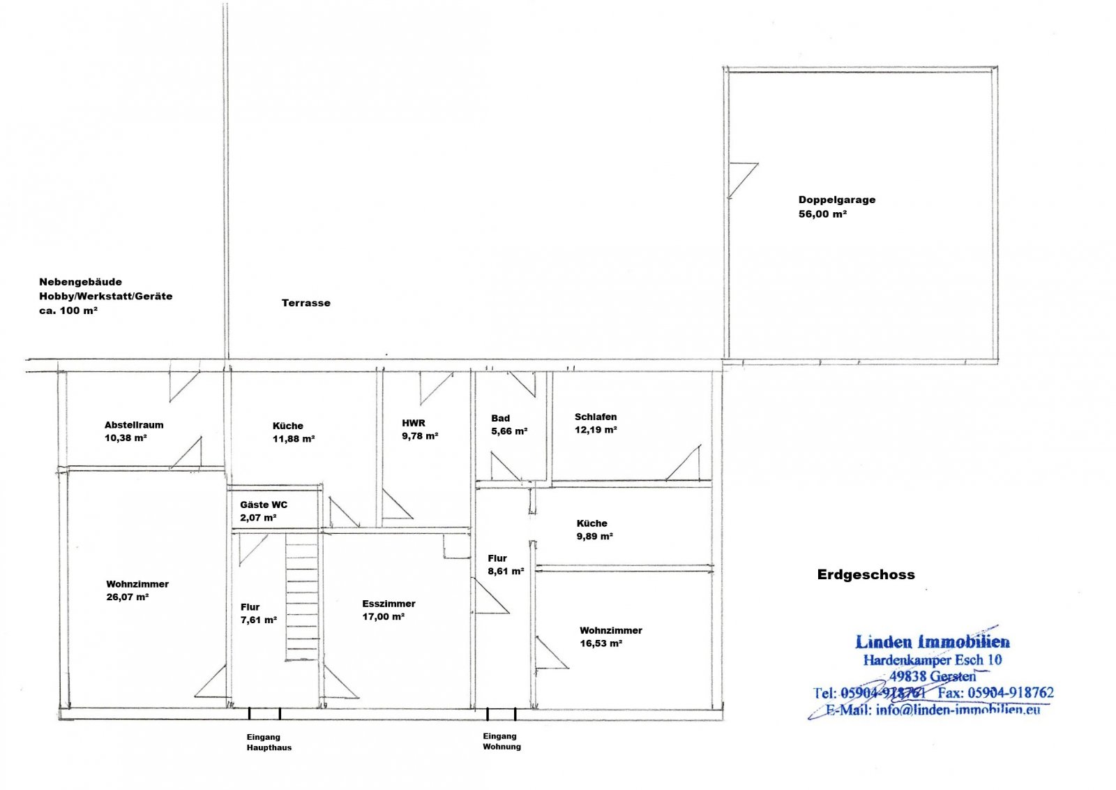
Erdgeschoss

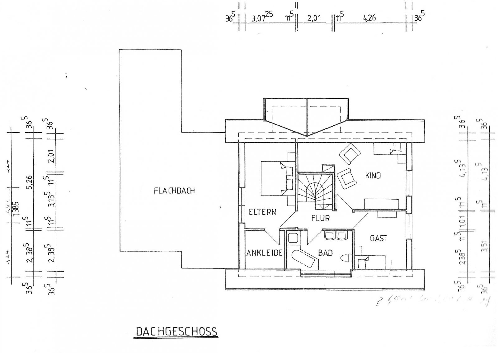
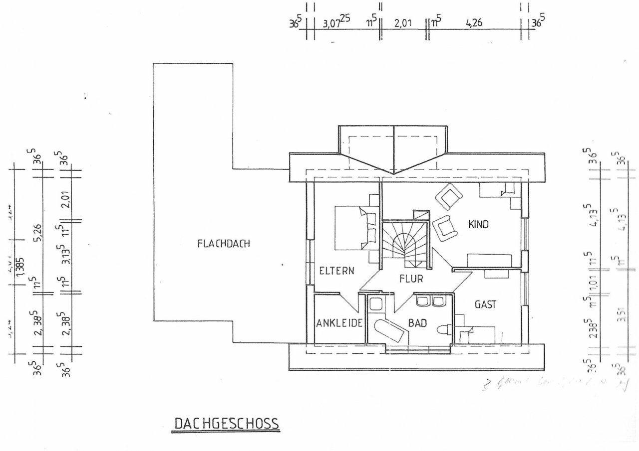
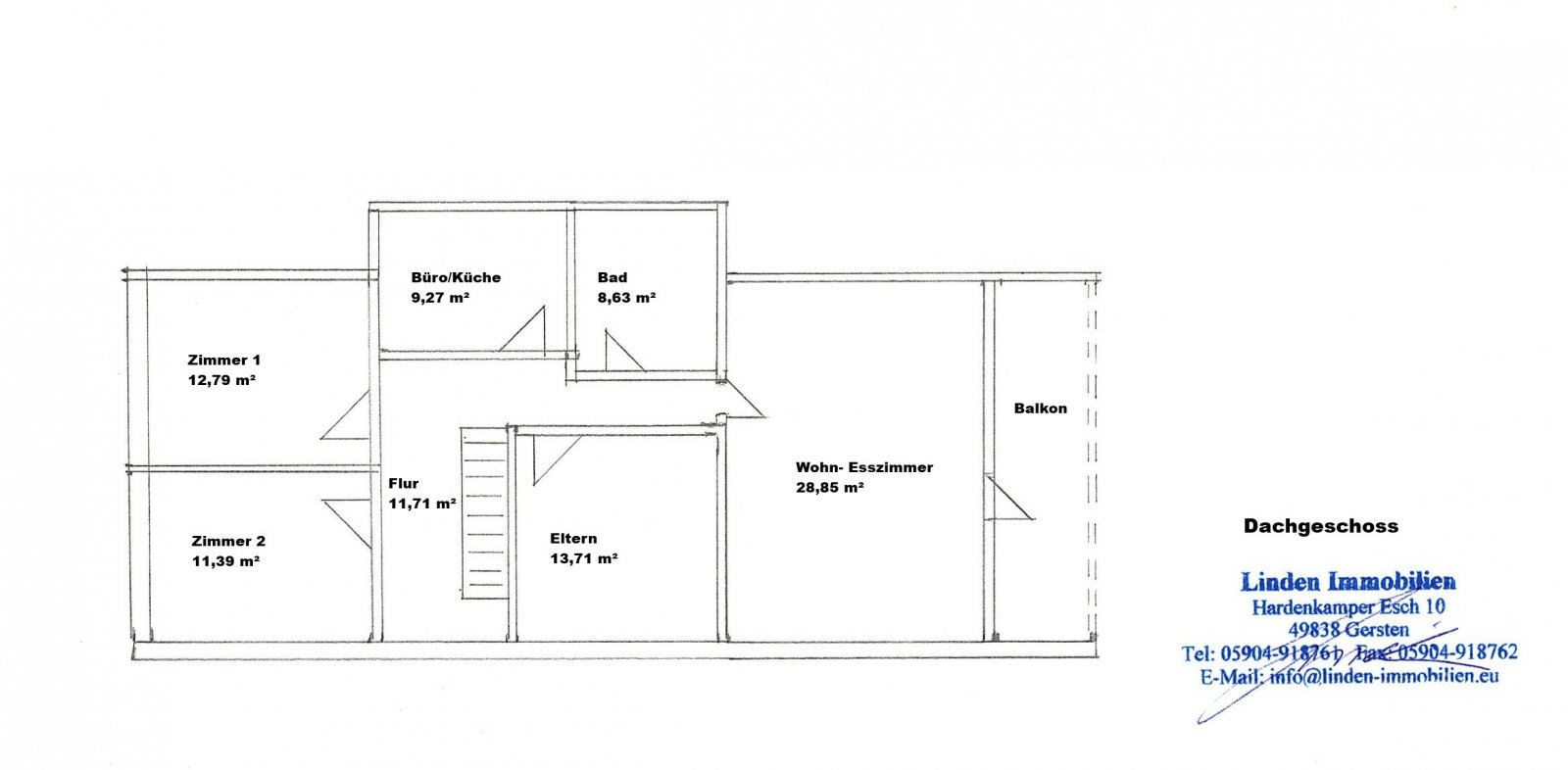
Dachgeschoss






















Preis:
480.000 €
Wohnfläche ca.:
135,20 m²
Grundstück ca.:
527 m²
Zimmeranzahl:
5
Dieses sehr gepflegte Einfamilienhaus mit Garage, Geräteraum und Carport wurde in massiver Bauweise 1995 erstellt.
Die Gesamtwohnfläche von 135,20 m² teilt sich wie folgt auf:
Im Erdgeschoss befinden sich
- Flur mit Garderobe (7,50 m²)
- Küche (17,15 m²)
- HWR (15,15 m²) mit Zugang zur überdachten Terrasse
- Wohn- Esszimmer (28,71 m²) mit Zugang zur Terrasse
- Arbeiten (10,78 m²)
- Gäste-WC (2,66 m²) saniert 2021
Im Dachgeschoss befinden sich
- Flur (3,71 m²)
- Eltern (14,24 m²)
- Ankleide (4,20 m²)
- Badezimmer (8,80 m²) Teilsanierung 2025 (WC, Dusche, Waschtisch mit Unterschrank)
- Gast (8,86 m²)
- Kind (17,62 m²)
Im liebevoll angelegten Garten befindet sich eine große überdachte Terrasse (ca. 40 m², Bj. 2015), eine weitere Terrasse, Hochbeete und eine Sitzecke.
Haustyp: Einfamilienhaus
Provisionspflichtig: ja
Provision: 3,57 % (inkl. MwSt.)
Küche: Einbauküche
Anzahl Schlafzimmer: 3
Anzahl Badezimmer: 1
Gäste-WC: ja
Keller: nein
Anzahl der Parkflächen: 1 x Carport; 1 x Garage
Baujahr: 1995
Verfügbar ab: nach Vereinbarung
Zustand: modernisiert
Heizung: Zentralheizung
Befeuerungsart: Gas
Energieausweistyp: Verbrauchsausweis - gültig vom 17.10.2025 bis 16.10.2035
Energieeffizienz-Klasse: D
Baujahr laut Energieausweis: 1995
Wir weisen auf unsere Allgemeinen Geschäftsbedingungen hin. Durch weitere Inanspruchnahme unserer Leistungen erklären Sie die Kenntnis und Ihr Einverständnis.
Das könnte Ihnen auch gefallen
49808 Lingen
Emsland
Niedersachsen






















